Casa esquinera en una planta 2 dorm y piscina comunitaria
Torroella de Montgri - Casa adosada
Disponibilidad y precios
Propiedad
Descripción
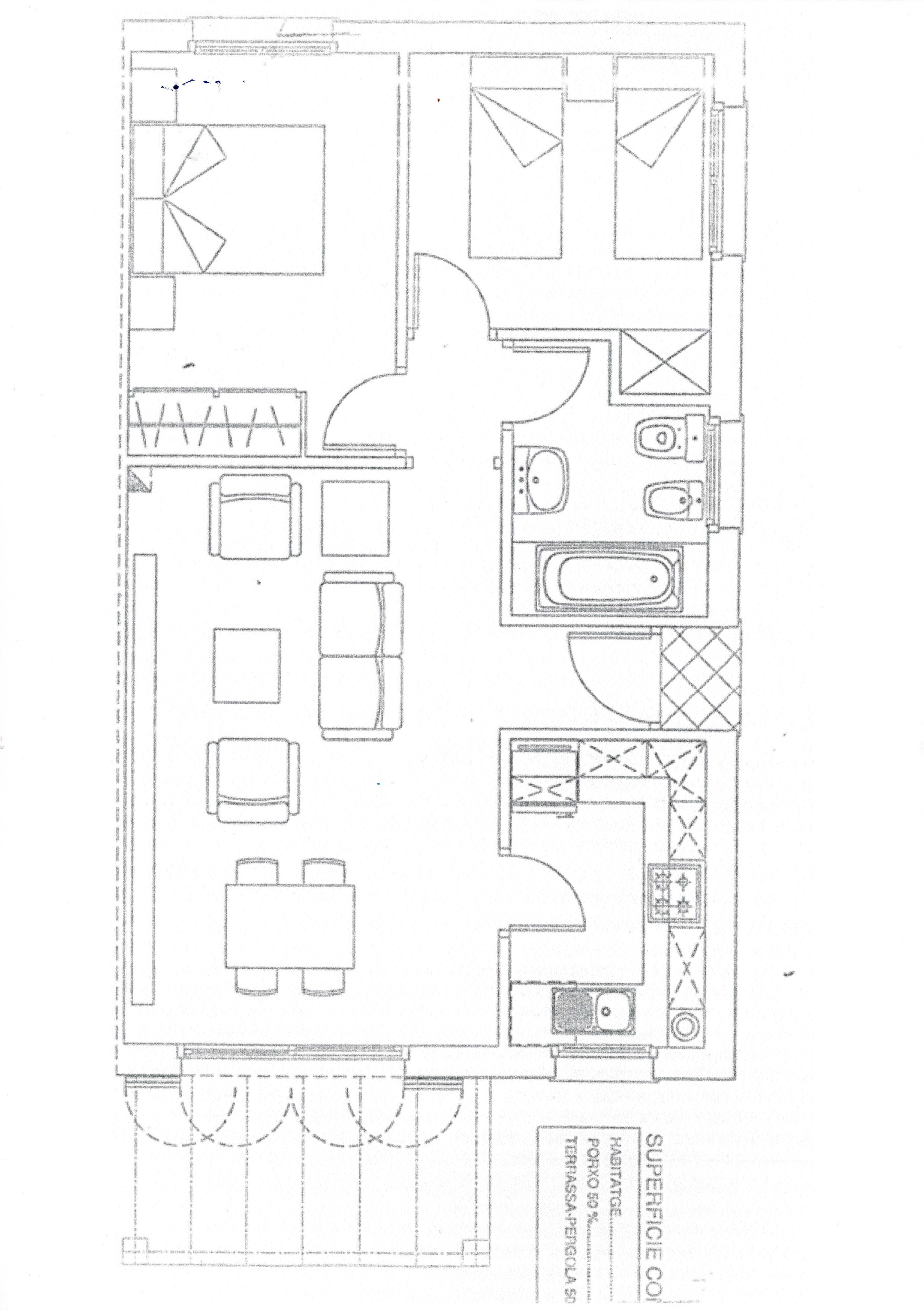
¡Descubre esta encantadora casa adosada esquinera en la tranquila urbanización Mas Pinell! Con un amplio jardín que rodea la propiedad, este refugio familiar ofrece un espacio ideal para disfrutar del aire libre. La casa cuenta con una práctica entrada que incluye un cuarto de baño completo.
La distribución en una sola planta facilita el día a día, y sus dos acogedoras habitaciones, una infantil con litera para tres niños y otra de matrimonio ambas con armarios empotrados, garantizan el confort de toda la familia. El salón, con su cálida chimenea, se convierte en el lugar perfecto para relajarse, mientras que el comedor, equipado con ventilador de techo, ofrece un ambiente fresco y agradable.
La cocina abierta está completamente equipada y lista para que prepares deliciosas comidas. Además, las puertas correderas te permitirán acceder directamente al jardín y a la terraza cubierta, donde podrás disfrutar de momentos inolvidables al aire libre. La propiedad también incluye una casita tipo trastero y un rincón de "lounge" para tus momentos de relax.
Con capacidad para aparcar 1 o 2 coches y bicicletas, y a pocos pasos de una zona comunitaria con sus dos piscinas, esta casa es ideal para familias que buscan comodidad y diversión. No dejes pasar la oportunidad de vivir en este maravilloso hogar que combina espacio, funcionalidad y un entorno familiar inmejorable. ¡Ven a visitarla y déjate enamorar!
La distribución en una sola planta facilita el día a día, y sus dos acogedoras habitaciones, una infantil con litera para tres niños y otra de matrimonio ambas con armarios empotrados, garantizan el confort de toda la familia. El salón, con su cálida chimenea, se convierte en el lugar perfecto para relajarse, mientras que el comedor, equipado con ventilador de techo, ofrece un ambiente fresco y agradable.
La cocina abierta está completamente equipada y lista para que prepares deliciosas comidas. Además, las puertas correderas te permitirán acceder directamente al jardín y a la terraza cubierta, donde podrás disfrutar de momentos inolvidables al aire libre. La propiedad también incluye una casita tipo trastero y un rincón de "lounge" para tus momentos de relax.
Con capacidad para aparcar 1 o 2 coches y bicicletas, y a pocos pasos de una zona comunitaria con sus dos piscinas, esta casa es ideal para familias que buscan comodidad y diversión. No dejes pasar la oportunidad de vivir en este maravilloso hogar que combina espacio, funcionalidad y un entorno familiar inmejorable. ¡Ven a visitarla y déjate enamorar!
Características más destacadas
Piscina
Jardín
Terraza
Parking aire libre
Cocina americana (Vitrocerámica)
Nevera
Microondas
Horno
Congelador
Lavavajillas
Baños
1 Baño con ducha
Consumo energético
Consumo de energía
G
266 kW h / m² año
Emisiones
F
55 kg CO2 / m² año
Consumo de energía y emisiones
Escala de calificación energética
Consumo de energía
kW h / m² año
Emisiones
kg CO2 / m² año
A
Más eficiente
B
C
D
E
F
55
G
Menos eficiente
266
Mapa y distancias
349.000 €
