Maison d'angle de plain-pied avec 2 chambres et une piscine commune
Torroella de Montgri - Maison mitoyenne
Disponibilité et prix
Propriété
Description
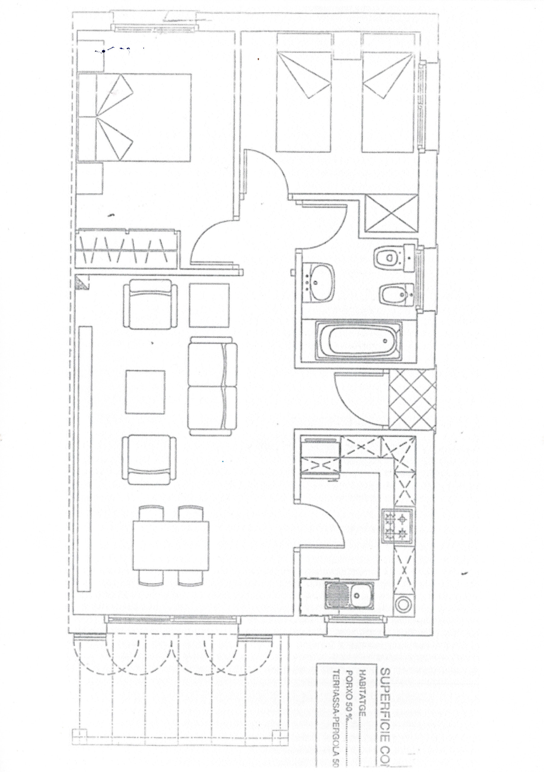
Découvrez cette charmante maison mitoyenne d'angle dans la paisible urbanisation Mas Pinell ! Avec un grand jardin qui entoure la propriété, ce refuge familial offre un espace idéal pour profiter de l'extérieur. La maison dispose d'une entrée pratique qui comprend une salle de bain complète.
La distribution sur un seul niveau facilite le quotidien, et ses deux chambres accueillantes, l'une pour enfants avec un lit superposé pour trois enfants et l'autre de mariage, toutes deux avec des placards intégrés, garantissent le confort de toute la famille. Le salon, avec sa cheminée chaleureuse, devient l'endroit parfait pour se détendre, tandis que la salle à manger, équipée d'un ventilateur de plafond, offre une ambiance fraîche et agréable.
La cuisine ouverte est entièrement équipée et prête pour que vous prépariez de délicieux repas. De plus, les portes coulissantes vous permettront d'accéder directement au jardin et à la terrasse couverte, où vous pourrez profiter de moments inoubliables en plein air. La propriété comprend également une petite remise et un coin "lounge" pour vos moments de détente.
Avec la capacité de garer 1 ou 2 voitures et des vélos, et à quelques pas d'une zone communautaire avec ses deux piscines, cette maison est idéale pour les familles qui recherchent le confort et le divertissement. Ne laissez pas passer l'opportunité de vivre dans ce merveilleux foyer qui combine espace, fonctionnalité et un environnement familial inégalable. Venez la visiter et laissez-vous séduire !
La distribution sur un seul niveau facilite le quotidien, et ses deux chambres accueillantes, l'une pour enfants avec un lit superposé pour trois enfants et l'autre de mariage, toutes deux avec des placards intégrés, garantissent le confort de toute la famille. Le salon, avec sa cheminée chaleureuse, devient l'endroit parfait pour se détendre, tandis que la salle à manger, équipée d'un ventilateur de plafond, offre une ambiance fraîche et agréable.
La cuisine ouverte est entièrement équipée et prête pour que vous prépariez de délicieux repas. De plus, les portes coulissantes vous permettront d'accéder directement au jardin et à la terrasse couverte, où vous pourrez profiter de moments inoubliables en plein air. La propriété comprend également une petite remise et un coin "lounge" pour vos moments de détente.
Avec la capacité de garer 1 ou 2 voitures et des vélos, et à quelques pas d'une zone communautaire avec ses deux piscines, cette maison est idéale pour les familles qui recherchent le confort et le divertissement. Ne laissez pas passer l'opportunité de vivre dans ce merveilleux foyer qui combine espace, fonctionnalité et un environnement familial inégalable. Venez la visiter et laissez-vous séduire !
Caractéristiques principales
Piscine
Jardin
Terrasse
Parking extérieur
Cuisine américaine (Vitrocéramique)
Réfrigérateur
Micro-ondes
Four
Congélateur
Lave-vaisselle
Bains
1 salle de bain avec douche
Général
TV
Jardin
Clôture
Terrasse
Lave-linge
Barbecue
Cheminée
60 m² Logement
148 m² Terrain
Accès logement sans escalier
Piscine Collective+Infantile
Parking extérieur même bâtiment
Qualification énergétique
Consommation d'énergie
G
266 kW h / m² Année
Émissions
F
55 kg CO2 / m² Année
Consommation d'énergie et émissions
Échelle d'évaluation énergétique
Consommation d'énergie
kW h / m² Année
Émissions
kg CO2 / m² Année
A
Plus performant
B
C
D
E
F
55
G
Moins performant
266
Carte et distances
349 000 €
