Hoekhuis op begane grond met 2 slaapkamers en een gemeenschappelijk zwembad
Torroella de Montgri - Rijhuis
Beschikbaarheid en prijzen
Eigendom
Omschrijving
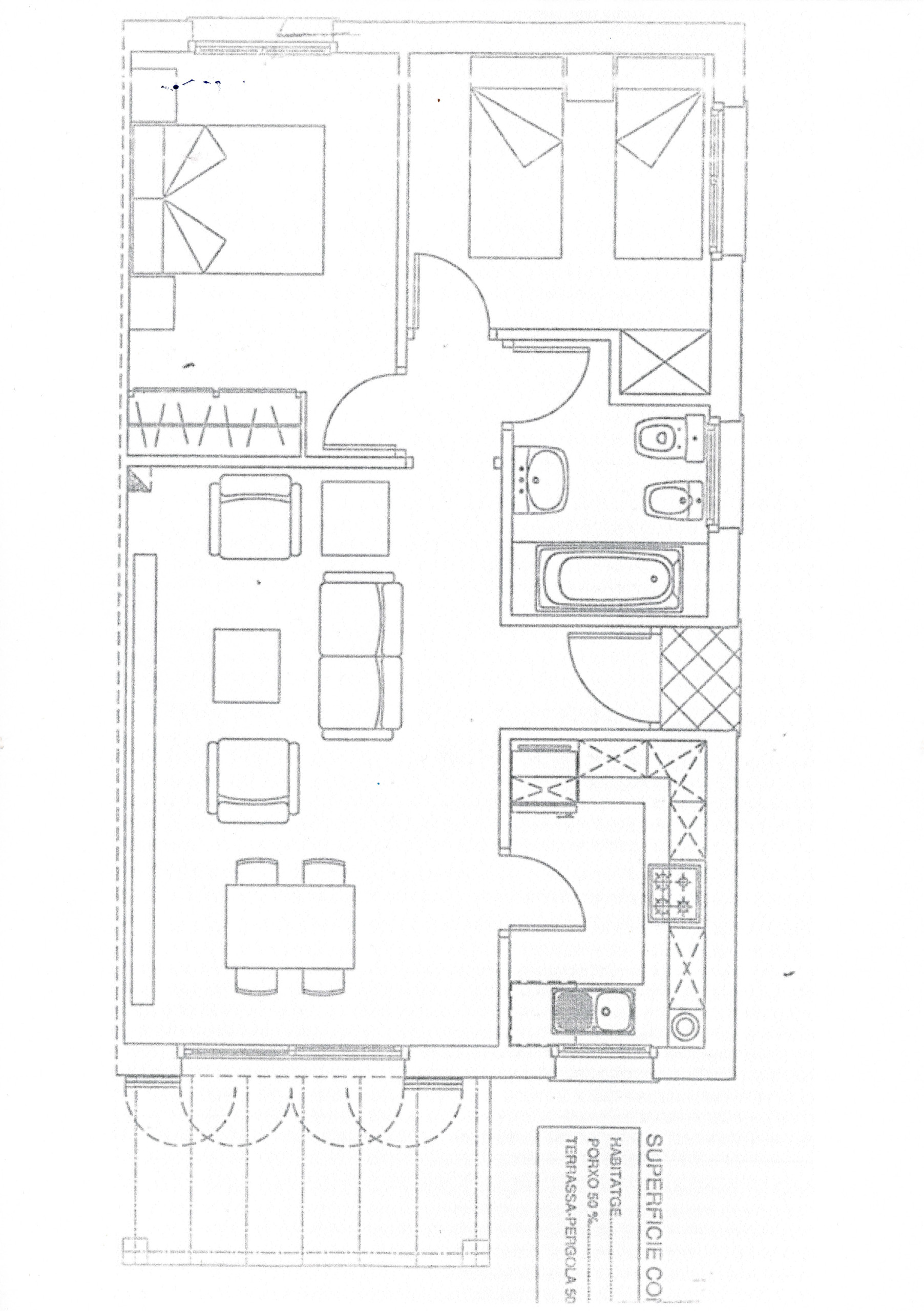
Ontdek deze charmante hoekwoning in de rustige woonwijk Mas Pinell! Met een ruime tuin die de woning omringt, biedt deze gezinswoning een ideale plek om van de buitenlucht te genieten. Het huis beschikt over een praktische entree met een complete badkamer.
De indeling op één verdieping vergemakkelijkt de dagelijkse gang van zaken, en de twee gezellige slaapkamers, een kinderkamer met een stapelbed voor drie kinderen en een ouderslaapkamer, beide met ingebouwde kasten, garanderen het comfort van het hele gezin. De woonkamer, met zijn warme open haard, wordt de perfecte plek om te ontspannen, terwijl de eetkamer, uitgerust met een plafondventilator, een frisse en aangename sfeer biedt.
De open keuken is volledig uitgerust en klaar voor je om heerlijke maaltijden te bereiden. Bovendien zullen de schuifdeuren je rechtstreeks toegang geven tot de tuin en het overdekte terras, waar je onvergetelijke momenten in de buitenlucht kunt genieten. De eigendom omvat ook een berghokje en een loungehoek voor je ontspanningsmomenten.
Met ruimte voor het parkeren van 1 of 2 auto's en fietsen, en op enkele stappen van een gemeenschappelijke zone met twee zwembaden, is dit huis ideaal voor gezinnen die comfort en plezier zoeken. Laat de kans niet voorbijgaan om in dit geweldige huis te wonen dat ruimte, functionaliteit en een ongeëvenaarde familieomgeving combineert. Kom het bekijken en laat je betoveren!
De indeling op één verdieping vergemakkelijkt de dagelijkse gang van zaken, en de twee gezellige slaapkamers, een kinderkamer met een stapelbed voor drie kinderen en een ouderslaapkamer, beide met ingebouwde kasten, garanderen het comfort van het hele gezin. De woonkamer, met zijn warme open haard, wordt de perfecte plek om te ontspannen, terwijl de eetkamer, uitgerust met een plafondventilator, een frisse en aangename sfeer biedt.
De open keuken is volledig uitgerust en klaar voor je om heerlijke maaltijden te bereiden. Bovendien zullen de schuifdeuren je rechtstreeks toegang geven tot de tuin en het overdekte terras, waar je onvergetelijke momenten in de buitenlucht kunt genieten. De eigendom omvat ook een berghokje en een loungehoek voor je ontspanningsmomenten.
Met ruimte voor het parkeren van 1 of 2 auto's en fietsen, en op enkele stappen van een gemeenschappelijke zone met twee zwembaden, is dit huis ideaal voor gezinnen die comfort en plezier zoeken. Laat de kans niet voorbijgaan om in dit geweldige huis te wonen dat ruimte, functionaliteit en een ongeëvenaarde familieomgeving combineert. Kom het bekijken en laat je betoveren!
Belangrijke eigenschappen
Zwembad
Tuin
Terras
Openlucht parkeerplaats
Open keuken (Keramisch fornuis)
Koelkast
Magnetron
Oven
Vriezer
Vaatwasmachine
Badkamers
1 Badkamer met douche
Algemeen
Televisie
Tuin
Omheind perceel
Terras
Wasmachine
Barbecue
Openhaard
60 m² vloeroppervlak
148 m² perceel
Toegang zonder trappen
Gemeenschappelijk kinderbad
Openlucht parkeerplaats in het zelfde gebouw
Energieclassificatie
Energieverbruik
G
266 kW h / m² Jaar
Uitstoot
F
55 kg CO2 / m² Jaar
Energieverbruik en uitstoot
ENERGIELABEL
Energieverbruik
kW h / m² Jaar
Uitstoot
kg CO2 / m² Jaar
A
Efficiënter
B
C
D
E
F
55
G
Minder efficiënt
266
Kaart en Afstanden
€ 349.000
